Fotografía
Proyectos
SOBRE MI
CONTACTO
Fotografía
Proyectos
SOBRE MI
CONTACTO
Luis Picarelli
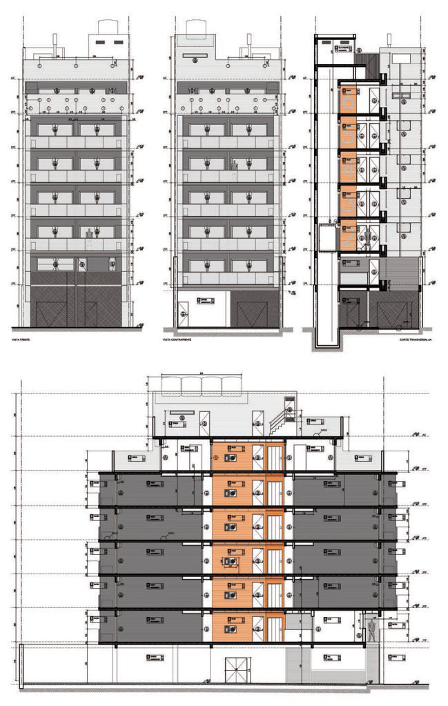
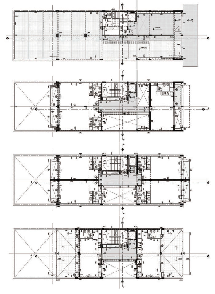
Acuña de Figueroa 882
Ciudad de Buenos Aires, Proyecto realizado en colaboración con el Estudio MAR.
Obra terminada
Plantas de Arquitectura
Render de Proyecto
Tambien te puede interesar...
Pico 3118
2012
Viviendas Lavalle
2012
Conjunto DV8
2018
Casa EFE
2019
Edificio CAFAR
2016
Proyecto Quintana
2024
↑
Back to Top