Fotografía
Proyectos
SOBRE MI
CONTACTO
Fotografía
Proyectos
SOBRE MI
CONTACTO
Luis Picarelli
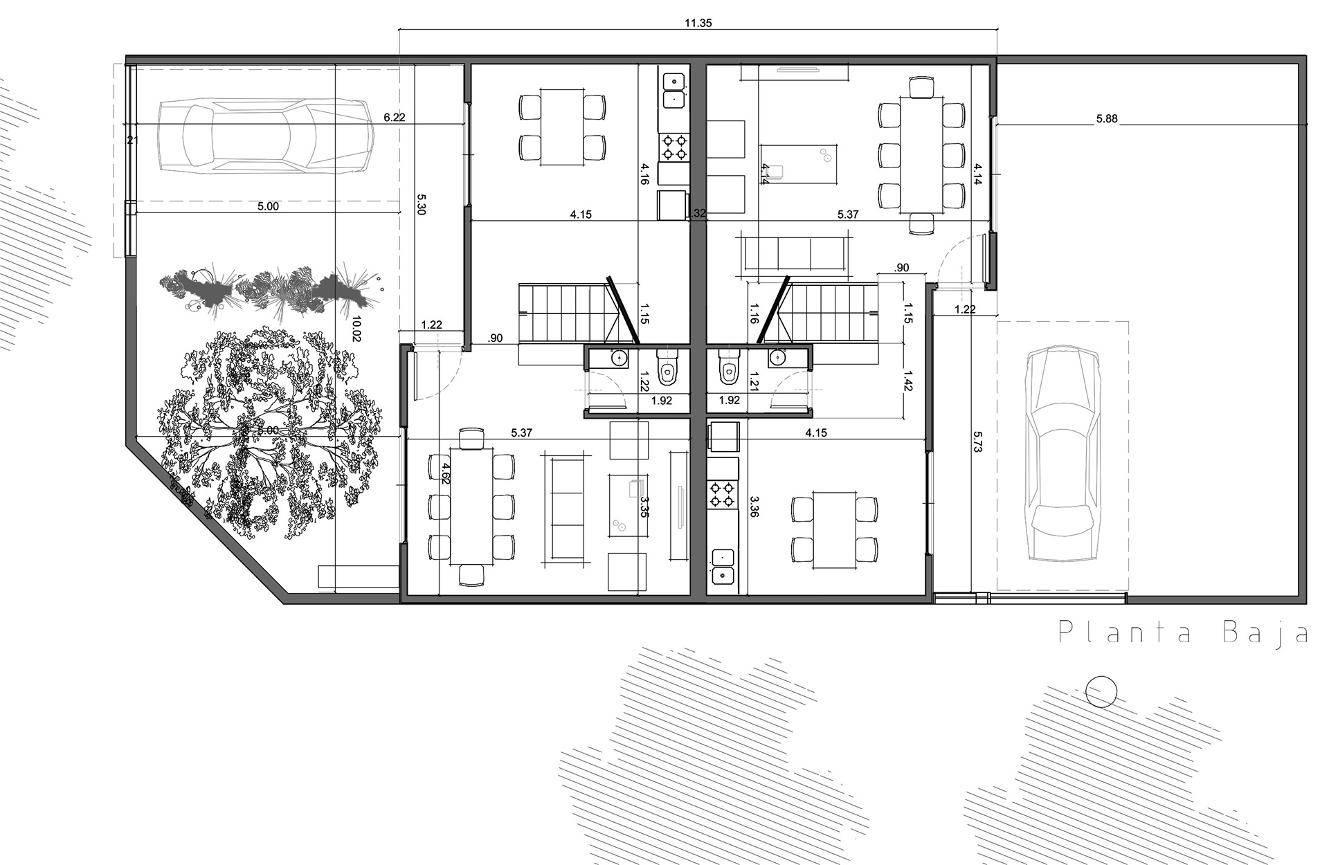
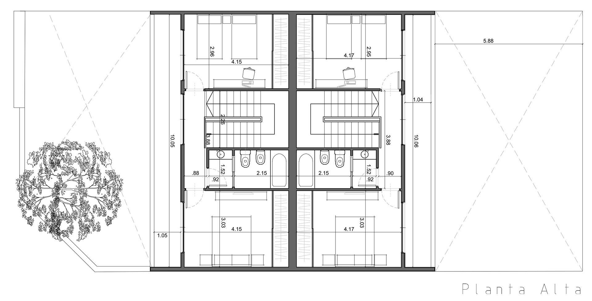
Casa EFE
Ituzaingó, Provincia de Buenos Aires. Picarelli-Peltzer Arqs. 2019
Proyecto de 2 casas encastradas.
Plantas de Arquitectura.
Planta Baja
Planta Alta
Terraza
Renders de Proyecto
Algunas fotos de la obra en proceso.
Tambien te puede interesar...
Viviendas Lavalle
2012
Pico 3118
2012
Edificio CAFAR
2016
Conjunto DV8
2018
Proyecto Quintana
2024
Acuña de Figueroa 882
2013
↑
Back to Top